Üteg 53

Investor: Angelfield Kft.

County: Hungary

Location: Budapest, XIII. District, Angyalföld, Üteg str. 53

Planning date/status: 2008, b. permit

Construction date: 2010

Plot size: 852 m²

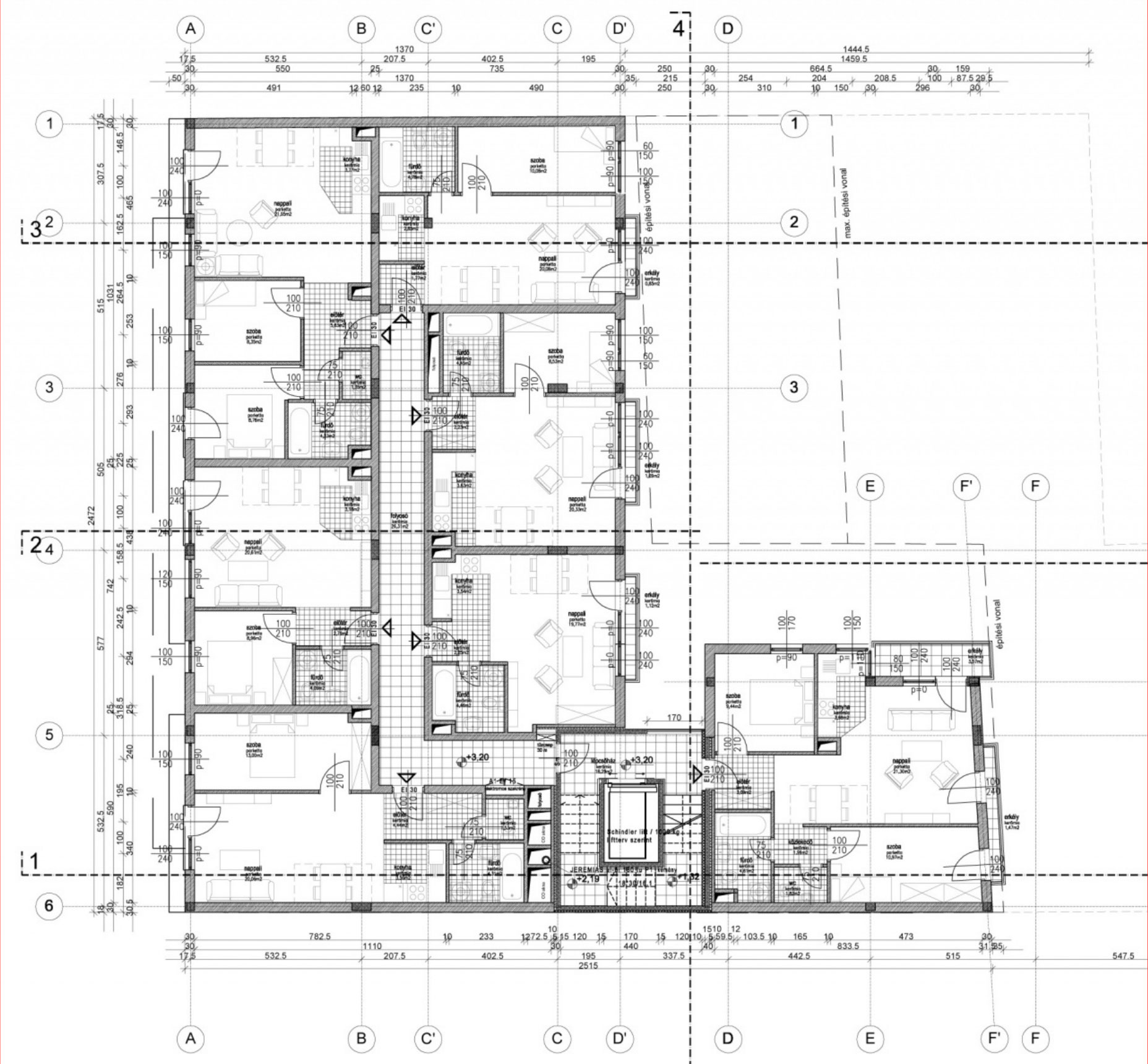
Built area: 2.118 m²

Parking area: 37

Apartments: 33

Designer: Lázár Gyula, Béres-Deák Krisztina

Residential house with 33 flats and 2 shops in the reconstruction part of XIII. District.

The building is modern, with flat-roofs, using the newest material and a common, lovely garden. You can find two shops on groundfloor opening from the street, the underground guaranted the parking area. All the 5 levels you can find flats designed according the standard, all with own balcony or big terraces. The flat sizes are 30-60 m2, mostly designed for young persons, in modern style.

Images

Other projects from Residential

AVICO PARK

The project is located in Budapest X. district, Kőbányai street near the junction of main roads Kőbányai út and Könyves Kálmán körút, opposite the future Traffic Museum.

Greenside Residential Complex

Residential Complex of 3 buildings with a total of 187 apartments. Budapest, XIII. District.

Park West

The project is in the develping part of Budapest 13 district close both to the inner city and the green park of Városliget.

GAMA Residence

Modern Residential Building in the 9th District of Budapest.

Fay 85

Residential building of 82 flats and 2 shops. Budapest, XIII. District.

Verona Ház

Residential Building of 127 apartments. Budapest, IX. District.

Manaya Sohat

Modern building of 7 levels in Tel Aviv near Tel Aviv University. 22 luxury flats and one shop.

Rahó Kert

The project is situated in one of the most elegant quarters of Újbuda, on the southern slope of Sas hill.

Menthapark Residential Park

Near the Orczy garden, in neighbouring of school yard, respectively for the favorable orentation not with interior yard , the building was planned in L-shaped open favorable airspace proportions.

Osvát

Residential building of 34 flats and a shop.

Citizen Park

The project is in the renewing surroundings of XIII. District close to Béke tér. The residential building has 144 various apartments on 7 floors.

Albatrosz Ház

In the site, as per the built prescription with suitable forming, a close line building of 63 flats was built, with a basementfloor and with garage on the groundfloor.

Karolina Udvar

The residential building is situated in a nice frequented area of XI. District with a view to Sas hill exactly next to Albatros House.

Pauler 18

Redesign of a protected, existing, neo-renessaince office building.

Akác Ház

The mandator program include an apartment house, with smaller (one, one and a half, respectively two-room) flats, a few bigger (three room, respectively two-storey) flats.

Mandarin Kert

The designed plot size is 7732 m2. The building has an inner yard. Budapest, XI. District

Óbuda Island Residential Park

The project is located on the Óbuda Island in the middle of Budapest.

Városliget Apartmanház

The project is located next to Récsei Center, a project also designed by Casiopea Group.

Red 3

Red-3 is a famous project situated in the heart of Arad in the Strada Voluntarilor street.

Orchidea Liget III

The entire project consists of 230 apartments divided into 4 buildings.

Orchidea Liget II

The entire project consists of 230 apartments divided into 4 buildings.

Valley view

Casiopea Group won a design competition in Brasov in January 2008.

Dunakert

The 129 keys condominium will be the first stage of a totally 800 flats development located by the lovely Duna riverside at South Budapest.

Platán Ház

On the plot as per the built regulations with suitable forming planned a residential building of 43 flats, with hall garage in the groundfloor.

Budai Kapu Apartment House

The designed residential complex is to be built in Székesfehérvár on the area between Budai and Seregélyesi streets.

Paradiso Residential Complex

The project is located in the city center of Pomaz, 15 km from Budapest.

Planet Park

The project is situated in the XIV district of Budapest, also called Zugló.

Kasztilia House

The project is located in center of the district, very close to the Big Boulevard, in a very narrow street.

Széchenyi negyed

The project is situated in the heart of Miskolc, a city of over 180,000 inhabitants, in a renewing area of the historical downtown.

Madárhegy Lakópark

Madárhegy, a new residential area is under development in the wonderful hills of Buda, with great panorama to the countryside.

Tűzér Kert

The project is situated in a silent suburban area of XIII. district close to the green park of Városliget.

Dob Udvar

The project is at the corner of Dob utca and Rózsa utca, on the most dynamically developing and time to time renewing part of Budapest 7th district (also called Elisabeth Town).

Rózsa Udvar

The project is very close to Dob Court. Since the designer and the investor are the same, we created a similarity between the two buildings, both in size and style.

Piccolo Apartmanház

The residential park is situated a silent side street in the renewing surroundings of VIII. District. Most of the apartments have balconies.

Szaturnusz Ház

The project is situated in the renewing surroundings of IX. District providing facilities for wide variety of age groups, from young singles to families with several children.

Árpád ház

3 level of underground parking, 9 level flats, on the ground floor to the Teve and Csongor street 6 Shops.

Casa Panna Cotta Apartment House

Residential building of 35 apartments in a former industrial-commercial area of the outer XIII district, today in big alteration.

Royal Residence társasház

The plot size is 760 m2 , the ground is plane.

Zöldliget Apartment House

The project is in the renewing surroundings of IX. District. It is consisting of 4 adjacent buildings.

Red 4

Red-4 is the fourth complex of ARED. It is located in Oradea. The buildings are standing above an open parking level with 180 flats on 9 levels.

Orchidea Liget I

The entire project consists of 230 apartments divided into 4 buildings.

City of Mara concept of facades

Contemporary urban façade design concept for the M8-10 project phases.

Napfürdö Otthon Lakópark

The project is situated in a silent suburban area with lot of greenery around it.

Budaörs Residential Park

The complex includes exclusive residential houses, elderly house, sports facilities and shopping center.

Buszesz

The 49000 m2 site is located in Óbuda, traditional North-West dwelling zone of Budapest, at the riverside of Danube.

Márton street 32-34

Between Lenhossék utca – Márton utca plot as per the built regulations with suitable forming planned 240 block of flats, in the basement floor with hall garage, in the groundfloor also with flats and on the street side with 4 shops

Királyhágó 4. project

The planning area is 7.985 m2 , the ground is nearly plane. The built area 3.914 m2, the green area is around 2.000 m2. The builing get the built permit in 2004, the delivery date expectedly 2007 september.

Szigetszentmiklós Complex - 55 000 m2

Multifunctional project situated in Szigetszentmiklós half island in a lake.

The Gardens Budapest

Gizella Udvar

The residential park is situated in the renewing surroundings of IX District next to the industrial monument called Gizella Mill.

Residential Towers

The project contains 3 buildings with 15 levels.

Ciprus Apartment House

The project is in a silent green area on the border of Xth and VIIIth Districts, close to Hungaria ave., one of the main roads of Budapest.

Magnólia Lakópark

The project is situated in a silent suburban area.

Silver Side Apartmanház

The project consisting of two adjacent buildings is situated in the renewing surroundings of IX. District in a silent area on the corner of Dandár and Vaskapu streets.