Hotel Szív

Investor: Hay Group

County: Hungary

Location: Budapest, VI. Szív street 7.

Planning date/status: 2009, Building permit

Construction date: 2010

Plot size: 466 m²

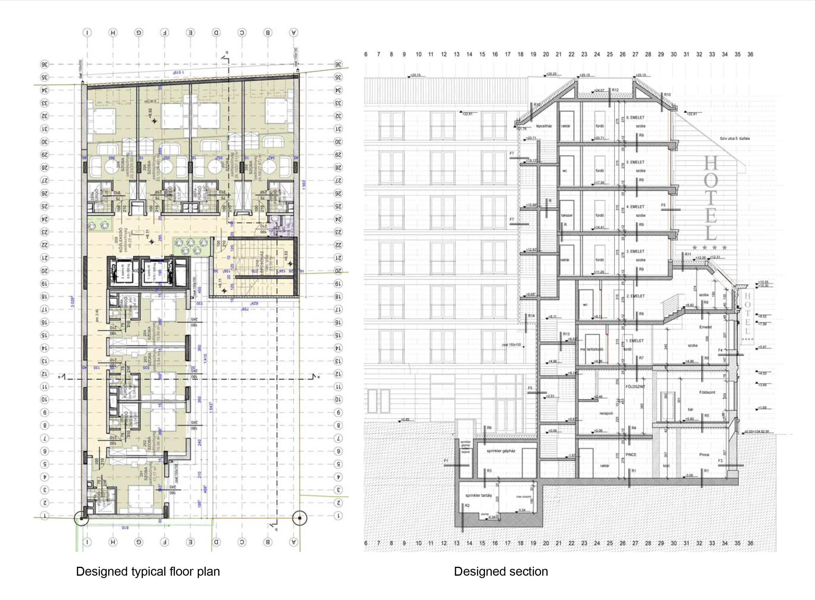
Built area: 1.850 m²

Apartments: 46

Designer: Gabor Helyes leading architect, Csillingh Dóra

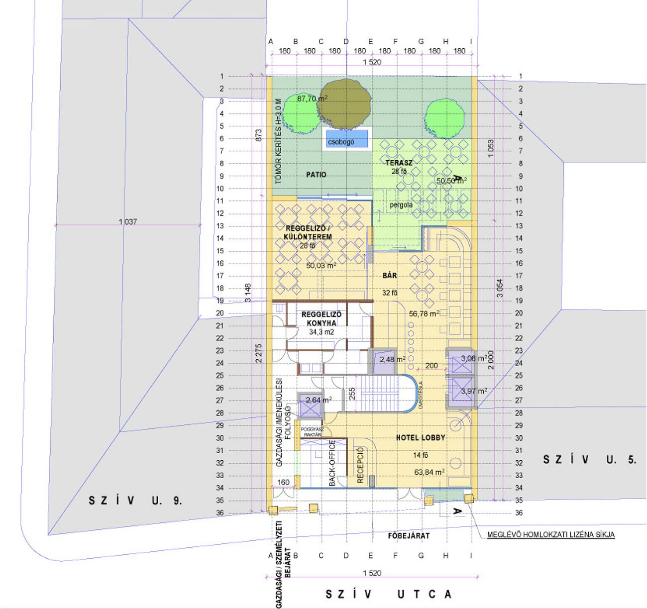
Elegant, small, four star boutique-style hotel with separate conference/breakfast room, inside patio, bar, wellness area.

The facade partly uses the decorative historical elements of the original 2 floor house, standed on the plot.

Images

Other projects from Hotels & Offices

Casa Radio

Mixed-use retail and leisure plus residential/office scheme.

Atrium Center Cluj

Atrium Center Cluj is a shopping and entertainment centre, located in the heart of Cluj, a city of 318 000 inhabitants.

Dream Island

The Dream Island project is located on the Óbuda Island - this island on the Danube is one of the most famous historical monuments in Budapest.

Orient Hotel and Dwelling House

Hotel****: 206 rooms on 7 levels, italian restaurant, conference center, fittness center with roof-terrace, Japanese-style inner patio.

Atrium Center Satu Mare - Ramada Hotel

**** Stars Hotel Tower.

Galeria Vila Dorobanti

The project is situated in the very heart of the Romanian capital, near the main junction Piata Romana.

Office Park

8 new building, 5 office-building, 3 luxorious dwelling houses with 120 flats.

Palic Tourism Complex

Located in north Serbia, next to the Hungarian border, Palic is a lovely traditional bath-village mostly designed in the XIX. Century, by a large and a smaller lake.

Harmony City

1 million m2 multifunction project. Located in Kiev Zdolbunovskaya.

King Hotel

Renovation and increasing the number of the units adding new functions to the original usage. Budapest, VII. District.